Villa Jestine I: Propriété à vendre à Turre























Description
Immeuble de quatre étages à vendre à Turre à Almeria, Andalousie – comprend un appartement et un ancien bar
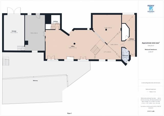
Cette propriété de 817m2 à Turre offre un mélange d’espaces résidentiels et commerciaux avec un potentiel de redéveloppement. S’étendant sur quatre étages, le bâtiment comprend un appartement séparé de 197 m2 avec sa propre entrée. L’appartement dispose de quatre chambres, deux salles de bains, une cuisine entièrement équipée et plusieurs terrasses avec vue sur la ville. La chambre principale comprend une salle de bains privative et une terrasse privée, tandis que le salon dispose d’une cheminée et d’un accès à une terrasse couverte.
À l’intérieur du bâtiment principal, le rez-de-chaussée présente un aménagement de 230 m2 avec un garage, un débarras, une cuisine, un bar et cinq toilettes. Le premier étage abrite un espace ouvert de 121m2 précédemment utilisé comme piste de danse avec un bar et une cabine de DJ. Une terrasse au premier étage mène à une piscine inutilisée, offrant un potentiel de rénovation. La propriété est classée comme « résidentielle », ce qui la rend apte à la conversion en appartements ou à d’autres utilisations.
Les caractéristiques supplémentaires comprennent un grand espace de sous-sol décloisonné avec lumière naturelle et un accès pratique depuis la Calle Los Algarrobos. Qu’elle soit réaffectée à des fins résidentielles, de location ou d’affaires, cette propriété à Turre offre une superficie importante et de multiples possibilités.
• Terrain de 538m2 avec une surface totale construite de 817m2
• Immeuble de quatre étages avec potentiel de réaménagement
• Appartement séparé de 197m2 avec 4 chambres et 2 salles de bains
• L’appartement comprend une cuisine entièrement équipée, un salon-salle à manger et des terrasses
• Chambre principale avec salle de bains privative et terrasse privée
• Climatisation dans l’appartement
• Le rez-de-chaussée (230m2) comprend garage, cellier, bar, cuisine et 5 toilettes
• Le premier étage dispose d’un espace ouvert de 121 m2 avec bar et cabine de DJ
• Terrasse au premier étage avec piscine inutilisée
• Grand espace de sous-sol à aire ouverte avec fenêtre
• Situé à Turre avec accès depuis la Calle Los Algarrobos
• Convient pour la conversion en appartements ou le développement à usage mixte
Emplacement: Pour l’emplacement précis, voir l’épingle sur Google maps ci-dessus.
Aéroports: L’aéroport d’Almeria est à 45 minutes en voiture, l’aéroport de Murcie est à 1 heure 20 minutes, l’aéroport d’Alicante est à 2 heures et l’aéroport de Malaga est à 2 heures 45 minutes.
4 terrains de golf: Mojacar - Marina de la Torre, Vera - Valle del Este, Cuevas de Almanzora - Desert Springs, Pulpi - Aguilon Golf.
Qui sommes-nous:
Mojacar Estates fonctionne avec succès en tant qu’agence indépendante de vente de propriétés et de locations de vacances depuis 1982. Notre équipe dévouée, qui travaille dans cette industrie depuis plus de 20 ans, offre un service professionnel et compétent à nos clients. Notre équipe parle couramment l’espagnol, l’anglais et l’allemand. Nous proposons des propriétés à vendre et à louer à Mojacar et dans les environs d’Almeria, notamment Turre, Garrucha, Vera Playa, Los Gallardos, Villaricos et San Juan de los Terreros.
Le prix indiqué ne comprend pas les taxes et frais dérivés de la vente (PTI au taux d’imposition en vigueur, frais de notaire, d’enregistrement et d’avocat). Nous vous rappelons qu’en tant que consommateur, vous avez le droit d’être informé et de recevoir la documentation informative correspondante, selon le cas, sur la base des dispositions du décret 218/05 du 11 octobre qui réglemente la réglementation sur l’information des consommateurs dans la vente et la location de logements en Andalousie.
Frais d'achat approximatifs
Prix net
550.000€
Taxe d'achat
38.500€
Registre foncier - env.
1.375€
Frais de notaire - env.
1.650€
Transfert - approx.
1.500€
* Selon la situation individuelle de chaque acheteur, il peut y avoir un allégement fiscal dont vous pouvez bénéficier.
Modes de paiement standard
L’acompte de réservation
3.000€
Le restant de l’acompte de 10%
52.000€
Paiement final à la conclusion
495.000€
Veuillez noter qu'avec la libéralisation du marché, les coûts des services publics tels que l'eau, l'électricité, le téléphone, le haut débit, etc. varieront d'un fournisseur à l'autre et ils sont normalement basés sur l'utilisation. En ce qui concerne l'assurance bâtiment et contenu, le coût de la police dépendra de plusieurs facteurs dont le montant de la couverture nécessaire. Pour ceux qui utilisent le bien comme résidence secondaire ou comme investissement, il existe également une taxe annuelle à payer aux autorités fiscales espagnoles et qui est basée sur la valeur fiscale du bien.
Pour plus d'informations sur le bien y compris tous les documents légaux tels que définis dans le décret régional 218/05 du 11 octobre veuillez visiter nos bureaux ou nous contacter par téléphone ou par e-mail. Les visites de propriétés sont strictement sur rendez-vous uniquement.
Estimer votre prêt
Diagnostic énergétique
Pendant
Ajouter à la liste
Villa Jestine I — VHMX 2902
Villa à vendre à Turre, Almeria
Indépendant — Revente
550,000€
- 4 chambres à coucher
- 2 salles de bains
- Surface terrain 538 m²
- Surface de plancher 817 m²
- Piscine Privée
- Eau Secteur
- Réseau Secteur
- Téléphone Possible
- Internet Possible
Emplacement: en cliquant pour agrandir la carte ci-dessous, vous pourrez voir l'emplacement exact de la propriété, regarder la rue et les vues aériennes, l'agrandir et le dézoomer, etc.
Terrains de golf: Marina de la Torre à Mojacar, Valle del Este à Vera et Desert Springs à Cuevas del Almanzora sont les terrains de golf les plus proches de Mojacar, Vera Playa y Huerta Nueva.
Propriété à vendre à Mojacar, Almeria a gagné en popularité au fil des ans avec le temps dans ce coin animé d'Andalousie offrant plus de 320 heures de soleil par an, des services tels que des bars et des restaurants ouverts toute l'année, une excellente infrastructure, etc. fait Mojacar et ses environs tels que Turre, Los Gallardos, Huerta Nueva, Garrucha, Vera Playa, Bedar, etc. un emplacement idéal pour trouver votre maison de vacances de rêve sous le soleil de Mojacar ou à proximité.
Aéroports: les 5 aéroports les plus proches de Mojacar sont: Almeria 45 minutes, Murcia 1 heure et 15 minutes, Alicante 2 heures, Grenade 2 heures et 20 minutes et Malaga 2 heures et 45 minutes.

Nous contacter
Tous les champs sont obligatoires
Ce que disent nos clients…
Hola Andre
I just wanted you to know how thankful I was that you were our estate agent in Mojacar. I enjoyed the manner in which you treated us. I trusted you and felt confident that you would do the best for us.
For so many years we were weighed down with the injustices happening in Al Parata. But we managed until so near the completion. Now we are free of responsibilities we’re getting on with the next stage of our lives.
I loved Mojacar itself and I wish you the best for your future.
Muchas gracias.
— Lesley & John Conely, Witney, UK